Bio
Sustainability
Projects
How I work
Press
Notes on Practice
Bio
Sustainability
Projects
How I work
Press
Notes on Practice
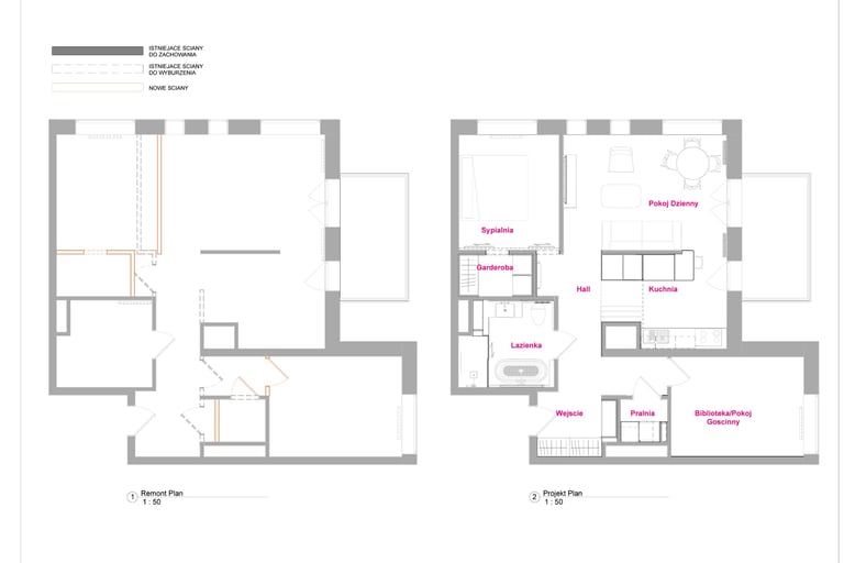
WB Apartment
Under-construction
Construction
Let's Talk